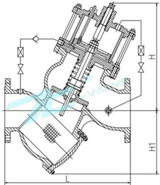
过滤活塞式电磁控制阀,介绍特点分类使用_上海首龙【TC品牌】阀门 产品型号:TC98006 产品口径:DN40~DN400mm 产品压力:1.0MPa-2.5mpa 产品材质:铸铁|铸钢|不锈钢 TC98006过滤活塞式电磁控制阀简介: 过滤活塞式电磁控制阀主要用于高层建筑和工矿企业以及医药、食品等领域的管路系统中,根据电信号或手动操作,使阀门打开或关闭。 能够根据电信号准确快速的控制阀门启闭;阀门关闭速度可调,且平稳关闭不会产生压力波动;采用直通电磁阀控制,维护简单。 电磁阀:电压交流220V,或直流24V;形式防暴、常开、常闭(任选) 过滤活塞式电动浮球阀主要外型尺寸:(法兰连接尺寸按JB/T 78-1994、JB/T 79-1994)  
通径 DN | L | H | H1 | D | D1 | Z-φ | PN10 | PN16 | PN25 | PN10 | PN16 | PN25 | PN10 | PN16 | PN25 | 40 | 260 | 236 | 155 | 150 | 110 | 4-18 | 50 | 300 | 236 | 155 | 160 | 125 | 4-18 | 65 | 340 | 250 | 165 | 180 | 145 | 4-18 | 8-18 | 80 | 380 | 280 | 180 | 195 | 160 | 4-18 | 8-18 | 8-18 | 100 | 430 | 310 | 210 | 215 | 230 | 180 | 190 | 8-18 | 8-23 | 125 | 450 | 360 | 240 | 245 | 270 | 210 | 220 | 8-18 | 8-25 | 150 | 480 | 413 | 260 | 285 | 300 | 240 | 250 | 8-23 | 8-25 | 200 | 600 | 510 | 330 | 335 | 360 | 295 | 310 | 8-23 | 12-23 | 12-25 | 250 | 730 | 668 | 410 | 390 | 405 | 425 | 350 | 355 | 370 | 12-23 | 12-25 | 12-30 | 300 | 850 | 875 | 485 | 440 | 460 | 485 | 400 | 410 | 430 | 12-23 | 12-25 | 16-30 | 350 | 980 | 980 | 270 | 500 | 520 | 550 | 460 | 470 | 490 | 16-23 | 16-25 | 16-34 | 400 | 1100 | 1050 | 300 | 565 | 580 | 620 | 515 | 525 | 550 | 16-25 | 16-30 | 16-34 |

欢迎新老客户来电来函。021-61246982 邮箱:famen123@126.com , , , , |